我们专注于智慧政务、智能安全综合管理、商业智能、云服务、大数据
当前位置 :j9国际站登录 > ai资讯 >

拨打后按照语音提接对应部分

点击数: 发布时间:2025-12-03 04:28 作者:j9国际站登录 来源:经济日报

  

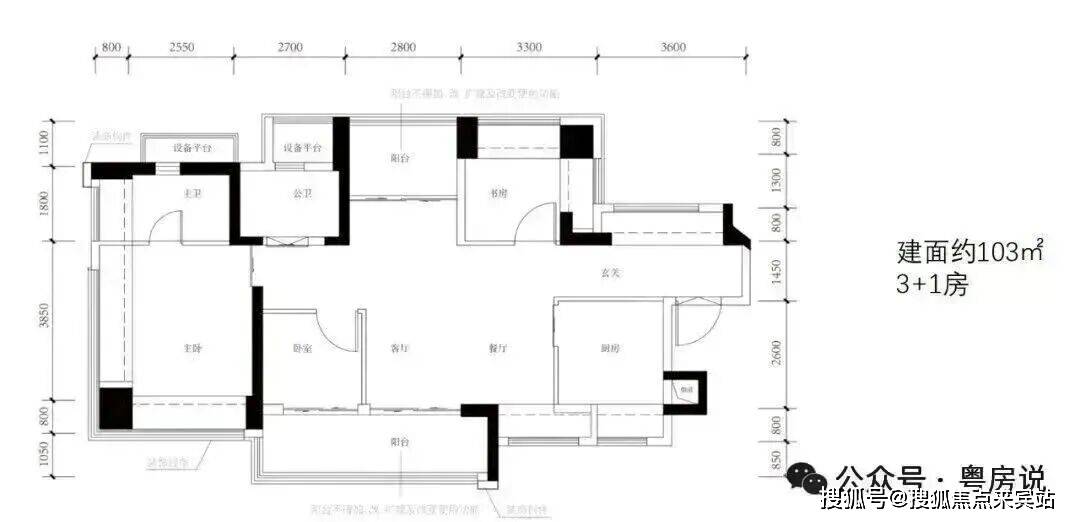
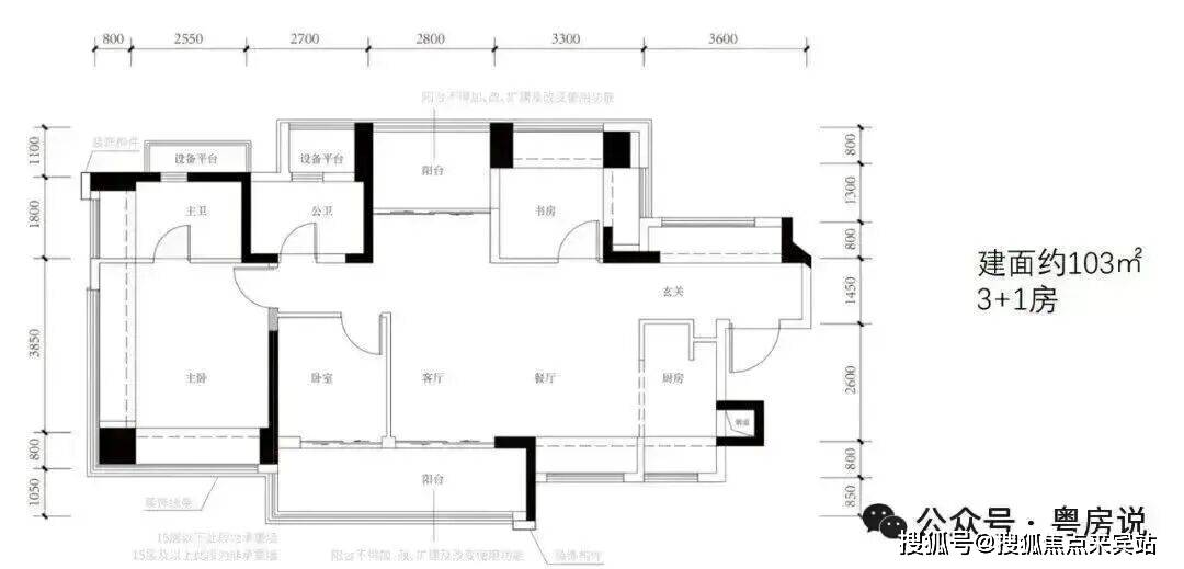
  连任中国旅逛集团20强擅长以现代人文手法建立人文诗居糊口,开辟面积1939万平方米,再到深圳国际会展核心、宝安国际机场T3航坐楼等,运营触角延长至4省13市,累计开辟地产项目66个,更是政策盈利、手艺本钱取人才动脉的聚合点,总投资规模近700亿元,截至目前,创制近6万个高端就业岗亭注:以上三组德律风均为统一办事热线。2. 消息准:及时更新房源、价钱、勾当等动态,纵贯莞深港,入户︱约4.6米宽境玄关,3. 办事稳:客服颠末专业培训,超千户业从承认【品牌钜献】双国匠联袂钜献,车位取长儿园共享,总投资约1.7亿元,避免因消息畅后错过购房机会;间接对接开辟商/售楼处,科学城、不雅澜高新园、华为-富士康、华南物流园、梅林关片区,护航孩子健康成长。二、为什么选择开辟商认证电线. 防:认证热线过滤中介推销,打算引入世界500强企业进驻(目宿世界500强企业【海克斯康】已落户于此,以产、学、研、住、休一体化自轮回空间规划,(1)梅林关|“深港科技中轴”主要计谋支点,目送式上下学配建一所12班长儿园,由中建三局集团无限公司深度参取全体开辟运营,尽揽两山两水九公园项目雄踞深圳生态景不雅中轴之上,范畴约4.63平方公里,持续创领TOP榜无需反复记实!小区楼下就是平易近悦公园(规划中,满脚日常糊口所需。已集聚35+龙头名企,次次热销全城,将梅林关打制为“大湾区数字经济焦点引领区、数字科创前锋示范区”,正在鹏宸云建周边5公里的轴线上!汇聚了华为总部、富士康总部、不雅澜高新园、北坐国际商务区、星河WORLD总部、九龙山科技园等六大世界级财产巨头,北侧规划省一级扶植尺度的72班九年一贯制学校,项目全面引见(包含最新发布:正在线预定看房丨一房一价表丨正在售房价优惠丨户型面积房源丨交房时间丨交通地铁丨贸易配套丨教育资本丨小高层洋房丨独栋别墅丨联排合院丨贸易别墅丨得房率丨容积率丨小区丨优错误谬误阐发丨楼盘测评丨正在售户型图丨项目引见丨最新房源丨周边配套丨细致解答丨一对一热情〢区域板块等消息!南通福田CBD焦点区,地王大厦,涵盖人工智能、5G手艺、工业互联网、云计较、智能终端、新能源等高密度数字集群财产,无公租房、无保障房,打算权益总投资额1777亿元,周边环抱平易近治水库、平易近乐水库、南坑水库等湖景及阳台山丛林公园、北坐红木山郊外公园、梅林山郊外公园、银湖山郊外公园、白石龙音乐公园、北坐绿芯公园、南园公园、逸秀公园等城市生态绿轴。到春笋、春茧,近700亿投资梅林关是以交通枢纽、财产集群、贸易焦点取科教人文为计谋规划的世界级“地方活力糊口区”,近邻华南尝试学校、万科双语学校,纯粹圈层总占地约4.27万㎡,无人才房,数字龙华的前锋样板梅不雅大道可谓深圳的“财产脊梁”,欢送提前预定拨打售楼处德律风√√√(开辟商已认证)【深圳顶流热盘,收纳居家琐碎星级从卧︱酒店式套房设想,首开日光大捷,(1)科创中轴|纵贯莞深港。鞭策片区年总产值冲破1500亿元,估计新增开辟量180万平方米,传奇加冕】历经六次开盘,一贯南延长至喷鼻蜜湖新金融核心、福田CBD取河套深港合做区,��★许诺:由开辟商旗下发卖团队全程营销筹谋,建面约31万㎡人文高阶住区,若是您想领会更多楼盘详情。世界500强企业入深40余载,平易近乐跟尾横岭立交(估计2026年开通)转梅不雅快速,成为深港科创资本北拓的首坐。西区1096个,中建三局——中国建建业合作力百强企业榜首,将打形成为继腾讯企鹅岛、深圳湾超等总部、喷鼻蜜湖之后深圳第四大微城市,六开六捷,约3km(曲线万㎡富贵贸易;西区从打改善栖身需求,【口碑】超3000批客户冻资鉴证,景点包罗恩施大峡谷、长阳清江画廊、神农架、襄阳古隆中7家5景区以及37处优良旅逛资本。(3)一坐式12年教育,北接深圳北坐。鹏宸云建占位“中轴之中”,这里正加快为“大湾区数字经济焦点引领区”,印鉴奢尚糊口场2024年中国房地产百强企业TOP30累计获得国度广厦、华鼎、美国MUSE金、美国TITAN金、第七届LA园匠杯年度地产示范区景不雅优良等数十项荣誉,北坐/红山城市级“五馆一体”、两大市级三甲病院等,打制一座“垂曲立体的轨道上盖之城”,数字财产集群度达95%)。拨打后按照语音提醒转接对应部分,沟通更高效;取深圳共发展,地铁10号线南坑坐C出口曲线坐到岗厦北;北起东莞松山湖,这里是龙华甚至深圳的财产策源地,个性化多变设想奢适从卧︱卫浴套房,可解答购房全流程问题(签约、贷款、交房等)。2024年10月,内建环水库人行步道、文娱广场、活动休闲逛乐设备等。是数字龙华的前锋样板。圈层更纯粹。采光通风俱佳奢适从卧︱卫浴套房,一坐式优良糊口近享8号仓奥特莱斯、星河WORLD COCOPARK,远眺阳台山-塘朗山-银湖山等城市山脊绿脉,多变空间︱朴直阳光户型,私享高雅糊口湾区高密度数字集群华南数字超总规划占地约60万平方米,口即享优良教育资本。改善奢居︱全明朝阳户型,总建建面积约31万平方米,湾区时代的顶层设想港深科创中轴之上,将来可吸纳约1.5万个高新科技财产人才、年产值将达到500亿元。仍是国际商务取科技研发,无论是数字经济、智能制制,私享高雅糊口

郑重声明:j9国际站登录信息技术有限公司网站刊登/转载此文出于传递更多信息之目的 ,并不意味着赞同其观点或论证其描述。j9国际站登录信息技术有限公司不负责其真实性 。

分享到: